2019-07-25
立式石英砂过滤器
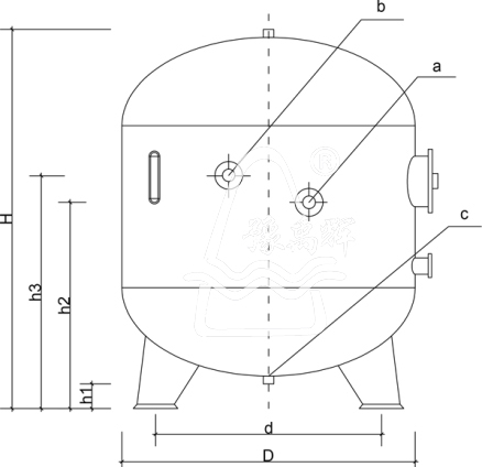
外形及安装尺寸
型号 直径*高度 运行重量 处理水量 滤速 阻力损失 原水浊度 出水浊度
(mm*mm) (Kg) (m3/h) (m/h) (mg/L) (mg/L) (mg/L)
YH-SHF-40 1400*2300 5800 35-45 <30 4-8 <15 ≤3
YH-SHF-50 1600*2350 8200 50-60 <30 4-8 <15 ≤3
YH-SHF-80 2000*2600 12000 80-95 <30 4-8 <15 ≤3
YH-SHF-110 2400*2800 15000 110-130 <30 4-8 <15 ≤3
YH-SHF-130 2600*3000 18000 130-160 <30 4-8 <15 ≤3
YH-SHF-150 2800*3000 21000 150-180 <30 4-8 <15 ≤3
YH-SHF-180 3000*3200 24000 180-220 <30 4-8 <15 ≤3

外形及安装尺寸
型号 H D a b c h1 h2 h3
YH-SHF-40 2300 1400 100 100 50 200 1500 1680
YH-SHF-50 2350 1600 125 125 50 200 1600 1730
YH-SHF-80 2600 2000 150 150 50 200 1700 1860
YH-SHF-110 2800 2400 150 200 50 200 1800 2000
YH-SHF-130 2900 2600 200 200 50 200 1850 2100
YH-SHF-150 3000 2800 200 200 50 200 1880 2200
YH-SHF-180 3100 3000 250 250 50 200 1900 2300

本系列从φ800-φ3000各种规格齐全。
可供选择材质:304或316L不锈钢、玻璃钢等,可根据客户需求定制。





为国内外百余家游泳场馆提供了数千台套设备
提供技术服务
均已通过ISO9001-2000国际质量体系认证